Haus B1 1.1 4½ Zi.-Wohnung 1. OG Neubauprojekt

Beschreibung

Mitten im beliebten Therwil, eingebettet in ein stilvolles Neubauprojekt, erwarteten Sie traumhafte Gartenwohnungen, grosszüggie Etagenwohnungen und mehrere Attikawohnungen. Finden Sie Ihre Traumwohnung beim Team Lindenberger, bestellen Sie die Unterlagen direkt online bei uns.

Wohnungshighlights auf einen Blick:
-An der Oberwilerstrasse, Einfahrt Sägeweg im zentral gelegenen Therwil, BL
-die barrierefreie Bauweise mit Lift, vorbereitete Infrastruktur für E-Mobilität und die Nähe zu allem, was das Leben bequem macht.
-Überhohe Räume von bis zu ca. 2,81 Meter
-Grosszügige Käuferbudgets für individuellen Innenausbau von Küche, Bad, Böden, etc.
-Je zwei Badezimmer pro 3½- und 4½ Zi.-Wohnung
-2½ bis 4½ Zi.-Wohnungen
-ca. 67 bis 130 m² Wohnfläche
-Einladende Begrünung auf dem Areal inkl. Kinderspielplatz
-Gartenwohnungen mit eigenen Gartenanteilen
-Offener Wohn-/Essbereich mit direktem Zugang zur Terrasse oder Garten
-Angeschlossen an das Fernwärmenetz des Wärmeverbunds Oberwil-Therwil und auf den Dächern befinden sich Photovoltaik-Anlagen
-Begrünte Umgebung mit Spiel- und Aufenthaltsflächen für alle Generationen
-Für alle, die ein Zuhause mit Platz, Ruhe und Natur suchen ohne auf Komfort und Anbindung zu verzichten.

Wir wissen Ihre Immobilie zu schätzen.
Alle Immobilienangebote finden Sie auf www.team-lindenberger.ch

Verkaufspreis: CHF 1'255'000.—
Verfügbarkeit: nach Vereinbarung

Eigenschaften

Strasse/Nr.:Oberwilerstrasse 45
PLZ/Ort:4106 Therwil
Stockwerk:1
Anzahl Zimmer:
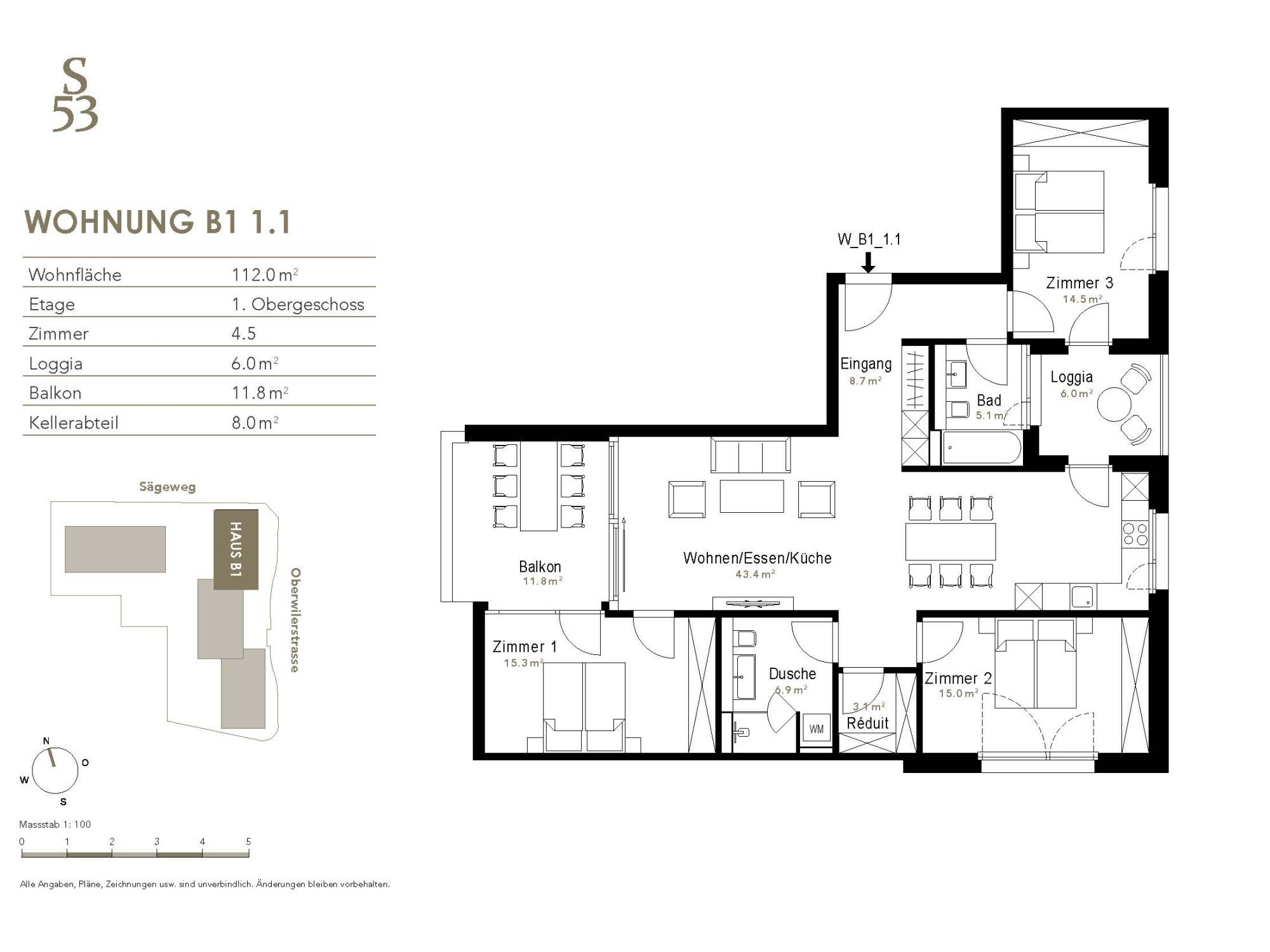
Wohnfläche:112 m2
Anzahl Schlafzimmer:3
Anzahl Badezimmer:2
Mikrolage:Gute Wohneigentumslage. Therwil im Leimental verbindet die Nähe zur Stadt Basel mit einer starken Gemeinschaft im Grünen. Dank Velo, Auto oder öffentlichem Verkehr ist die Stadt schnell erreichbar und doch bietet das Leben in Therwil spürbar mehr Ruhe und Lebensqualität.
Auch im Alltag ist die Gemeinde bestens aufgestellt: Kinderbetreuung, Schulen, Einkaufsmöglichkeiten, medizinische Versorgung und vielfältige Freizeitangebote machen Therwil zu einem Ort, an dem sich alle jeglichen Alters Zuhause fühlen.
Heizungsanlage:Fernwärme
Wärmeverteiler:Bodenheizung
Extras:Photovoltaik-Anlagen
Objektzustand:Neubau
Qualität der Ausstattung:Gehoben
Einstellplatz:Zuzüglich CHF 45’000.-- bis 55’000.--
Aussicht:
Lift:
Kinderfreundlich:
Balkon/Sitzplatz:
Keller:

Dokumentation bestellen

Standort

Vollbild-Ansicht

Kontaktinfos

Team Lindenberger Immobilien GmbH
Jannika Jätzold
Oberwilerstrasse 2
4106 Therwil
061 405 10 90